EPC CONTRACTOR
Contact usAbout us
Chemex Armenia is an EPC contractor that helps fine chemical production companies and APIs manufacturers build new facilities or renew old ones.
We are a young company that gathered experienced engineers and skilled project managers to provide our clients high standard services.
Effective solutions
We cover the whole process. You can come to us in the very beginning for a conceptual design or a basic engineering and we go this way together till the performance qualification protocols will be signed.
Our skills and the state-of-the-art software help us provide safe, fit-for-purpose and cost-effective solutions. But if you in the middle of your project and would like to speed things up we are also opened for cooperation.
Our vendor list is very broad. We can supply equipment from European, American, and Chinese manufacturers. With us you are in reliable hands.
Our Services
-
Conceptual design
-
Basic Engineering
-
Detailed Engineering
-
Procurement
-
Construction
-
Commissioning and Qualification
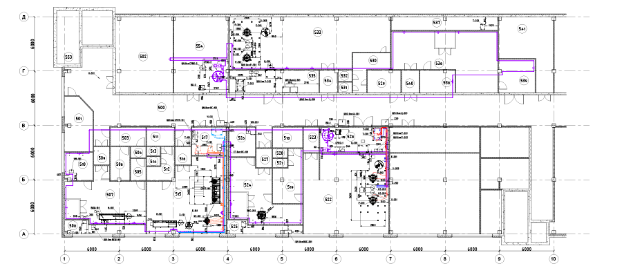
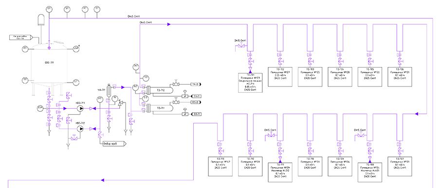
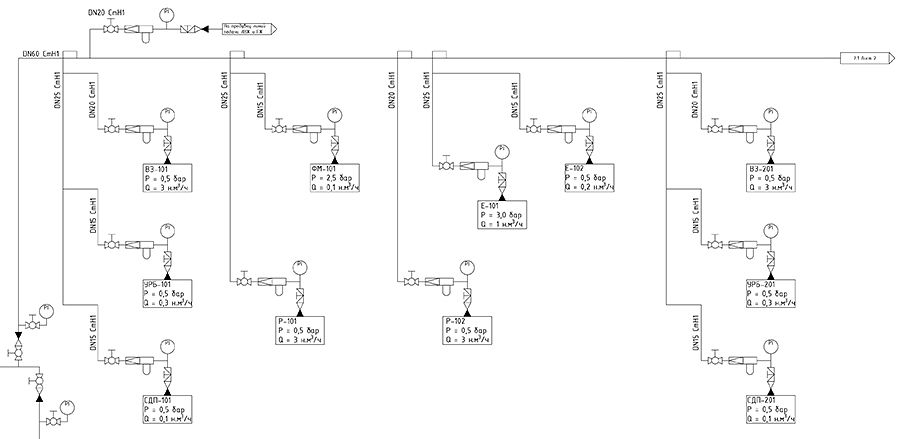
DESIGN OF API PRODUCTION SITE (34 000 KG / YEAR)
Conducting pre-project preparation, developing a conceptual design and preparing project documentation (section "Technological solutions") for the organization of the production of API.
At the moment, the implementation of the project has begun. And we act as a supplier of process equipment, a contractor for the installation of equipment and process pipelines, and commissioning.
























